Description
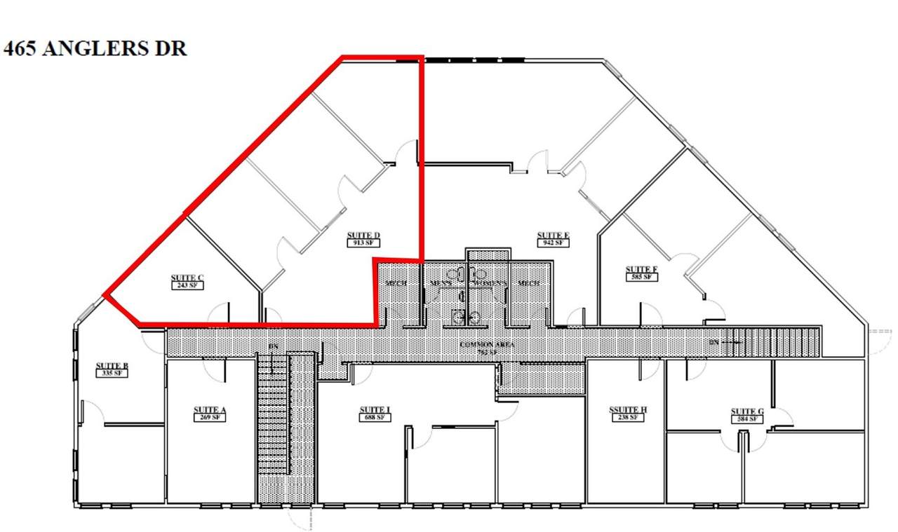
Professional, three-office suite with open area and a kitchenette. There is a sink and access to water in this unit. Offices are large with windows and situated in a private area of the building. Position your business in this professional and quiet office building centrally located in Steamboat Springs.
-
0BEDS
-
7ACRES
-
0BATHS
-
01/2 BATHS
School Ratings & Info
Description
Professional, three-office suite with open area and a kitchenette. There is a sink and access to water in this unit. Offices are large with windows and situated in a private area of the building. Position your business in this professional and quiet office building centrally located in Steamboat Springs.
© 2025 Summit MLS, Inc., a wholly owned subsidiary of Summit Association of REALTORS®. All rights reserved. The information being provided is for the consumer's non-commercial, personal use and may not be used for any purpose other than to identify prospective properties consumer may be interested in purchasing. The information provided is not guaranteed and should be independently verified. You may not reprint or redistribute the information, in whole or in part, without the expressed written consent of Summit Association of REALTORS®. Data last updated: 2025-11-16T00:27:20.077.